富士見市水谷東3丁目 中古一戸建住宅
物件オススメポイント
-
2016年築の中古一戸建住宅!
-
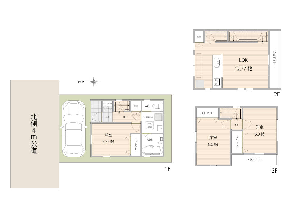
陽射しをたっぷり感じる南向き2階リビング
-
2面バルコニー で開放感良好!
-
車の通りが少ない閑静な住宅地
-
小学校まで徒歩11分で通学便利!

物件写真
周辺写真
-
■市立第二保育所
約550m(徒歩7分) -
■富士見みずほ幼稚園
約850m(徒歩11分) -
■富士見市立水谷東小学校
約850m(徒歩11分) -
■富士見市立水谷中学校
約1000m(徒歩13分) -
■ビッグ・エー富士見水谷東店
約600m(徒歩9分) -
■いなげや志木柏町店
約1100m(徒歩14分) -
■ファミリーマート富士見水谷東店
約450m(徒歩6分) -
■セブンイレブン富士見市水谷東2丁目店
約500m(徒歩7分) -
■ドラッグセイムス志木中宗岡4丁目店
約1100m(徒歩14分) -
■富士見水谷東郵便局
約600m(徒歩8分) -
■富士見クリニック
約400m(徒歩5分) -
■さくら記念病院
約900m(徒歩12分)
[取り扱い店舗]
マイタウン志木本店
詳細情報
| 物件名 | 富士見市水谷東3丁目 中古一戸建住宅 |
|---|---|
| 物件種類 | 中古一戸建住宅 |
| 販売価格 | 2,480万円 |
| 所在地 | 富士見市水谷東3丁目 |
| 間取り | 3LDK |
| 土地面積 | 公簿49.58㎡ |
| 建物面積 | 75.68㎡ |
| 用途 | 第一種住居地域 |
| 建ぺい率 | 60% |
| 容積率 | 200% |
| 構造 | 木造3階建 |
|---|---|
| 地目 | 宅地 |
| 建築年月日 | 2016年4月築 |
| 現状 | 居住中 |
| 設備 | ・公営水道 ・本下水 ・都市ガス |
| 交通 | 東武東上線「志木」駅 バス12分 『富士見クリニック』停歩5分 |
| 物件番号 | sc295 |
[取り扱い店舗]
マイタウン志木本店
この物件を見ている人におすすめの物件
-
東南角地×5SLDK。開放感があり、陽当たりの良い住まいです...
東南角地×5SLDK。開放感があり、陽当たりの良い住まいです...
最終更新:2025.12.18 オススメ物件
新座市野火止3丁目JR武蔵野線「新座」駅 徒歩22分
JR武蔵野線「新座」駅 徒歩22分最終更新:2025.12.18
中古一戸建住宅
-
マイタウンのトラストシリーズ が朝霞市朝志ヶ丘の地に新登場!
マイタウンのトラストシリーズ が朝霞市朝志ヶ丘の地に新登場!
最終更新:2025.12.14 トラストシリーズ
朝霞市朝志ヶ丘4丁目 新築分譲住宅
全3棟東武東上線「志木」駅 徒歩15分
東武東上線「志木」駅 徒歩15分最終更新:2025.12.14
新築分譲住宅
-
2路線3駅利用可能で都心部へのアクセス良好!
2路線3駅利用可能で都心部へのアクセス良好!
最終更新:2025.12.14 トラストステージ×カラーズ
朝霞市朝志ヶ丘2丁目8期
限定1棟東武東上線「志木」駅 徒歩9分
東武東上線「志木」駅 徒歩9分最終更新:2025.12.14
新築一戸建住宅







